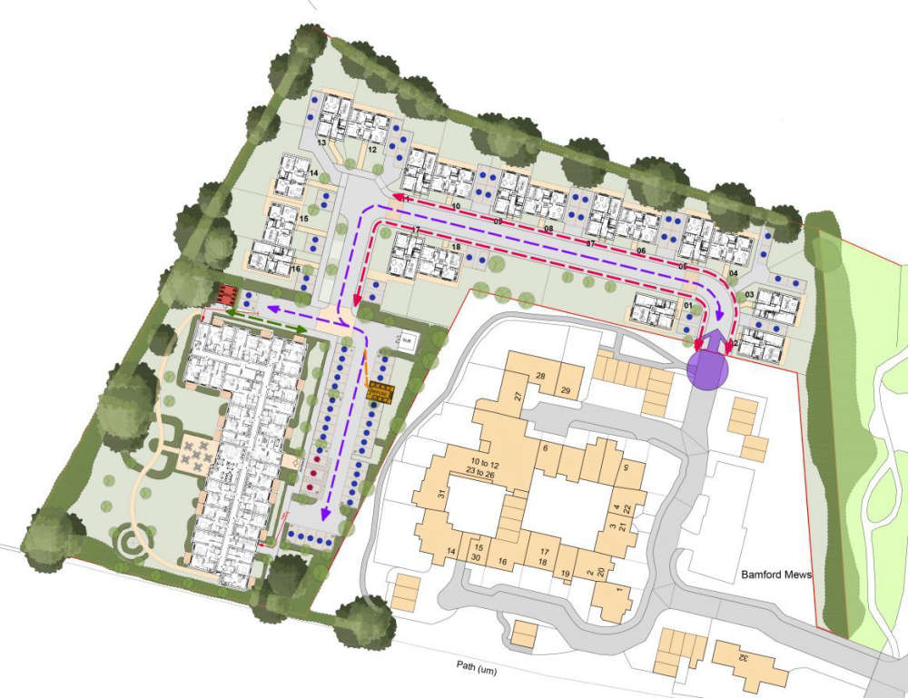
A new retirement village could soon be built in Rochdale. The development would see 49 apartments and 18 bungalows erected in the Bamford area of the borough.
The new complex would be built off Norden Road, behind the residential estate known as Bamford Mews. The idea behind the scheme is to meet local demand for more retirement living accommodation.
The L-shaped apartment block would include gardens and a communal lounge with a kitchenette for residents to share.
The 18 bungalows would all have private gardens as well as two parking spaces each. The apartment block has a 33-space car park included for residents and visitors.
Landscaping would see the tree-lined complex mesh well into the surrounding greenery, according to developers McCarthy Stone.

Planning papers read: “We believe that the proposals provide sensitively designed, high quality retirement living units, that are appropriate to meet local needs and contribute to the identified housing requirement in the local area.
“These are set around extensive and high quality outdoor communal areas which are accessible and inclusive for all future residents.”
McCarthy Stone is one of Britain’s leading retirement accommodation providers, having been in business for more than 40 years. Their vision is to ‘create communities for their customers that nurture a sense of belonging, independence, and peace of mind’.
This particular scheme falls within the Places for Everyone (PfE) plan. PfE would see thousands of new homes built across the Greater Manchester city-region over the next two decades.
Metal recycling scheme provides £17,000 boost for Andy’s Man Club
La Latte Lounge opens new community space and women’s workshop
Closure notice issued for Boro General Store on Church Street
Huge Medieval fair to bring Rochdale’s history to life this summer
Free Rocky the Rhino trail launched at The Rock for half term families
Community spirit stitched into new Rochdale banner celebrating unity and heritage
Rochdale sewer heat project could warm hospital, schools and homes
New speed camera vans to target Greater Manchester speeding hotspots
Housebuilders join Queensway litter pick as concerns remain over Cowm Top fly-tipping
Man arrested in Salford over synagogue terror attack investigation
Family pay tribute to woman found dead at Freehold flats
Second arrest made after Whitefield incident investigation

Comments
Add a comment